The 25-ft Shed
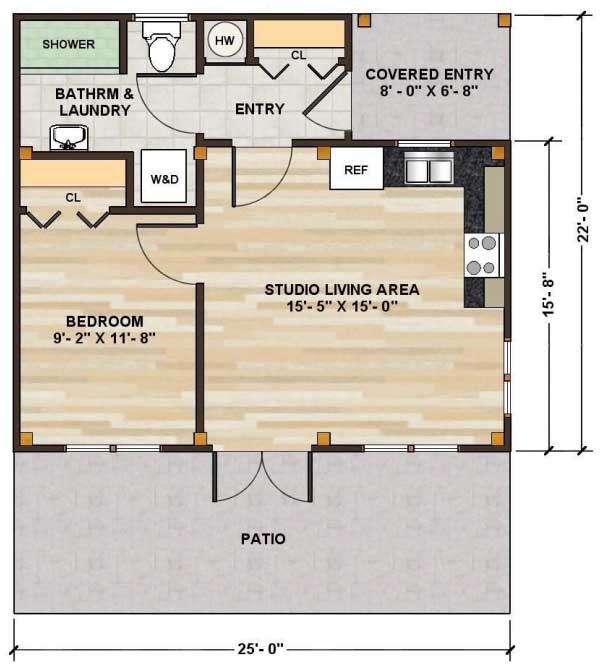
The 25’ Shed is a one-bedroom cottage of 500 sq. ft. Compared to a tiny home, it’s spacious.
Read more about some of the options available to make your Shed your own.
The 25’ Shed is a one-bedroom cottage of 500 sq. ft. Compared to a tiny home, it’s spacious.
Read more about some of the options available to make your Shed your own.